Graditeljstvo Tomić

Project Bonazzi

Status

Početak izgradnje siječanj 2026.

Planirani završetak

Proljeće 2027.

Tip nekretnine

Stambene zgrade

Broj jedinica

15 stambenih jedinica

Kvadratura prostora

od 45 do 85 m2

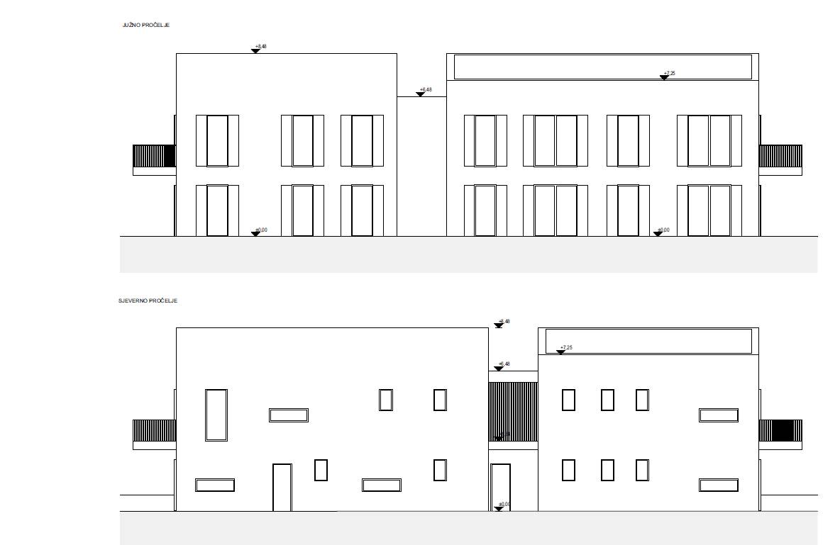
Opis projekta

Naš novi Projekt Bonazzi s planiranim početkom gradnje u proljeće 2026. godine u mjestu Bonazzi, okolica grada Poreča. Čine ga tri manje stambene zgrade s po 5 stambenih jedinica, od 45 do 85 m2. Za više planiranih detalja i informacija o našem najnovijem projektu, javite se na naše kontakt brojeve.

Slike projekta

Lokacija

Zatražite više informacija

Kontakt